A veszprémi egyetem területén, saját parkolóval, teljesen felújított állapotba várja új tulajdonosát ez az irodaház és raktár együttes.

Veszprémben az Egyetem területén kínálunk megvételre egy teljeskörűen felújított, 355 nm-es irodaházat és raktárt.
Az épület két utcáról megközelíthető, parkolás az irodaház előtt, saját területen lehetséges.
Carport kialakítás, két beállóhelyes elektromos autó töltési lehetőség.
Az iroda minden nyílászárója műanyag, minden iroda laminált padlót kapott, az emeleten egy irodában szőnyegpadló van, a közös helyiségek, mosdók, közlekedők és raktárak kerámia burkolatúak.
Az épület betonból, téglából és könnyűszerkezetes technológiával készült.
Szigetelése 15 cm.
Közös költség nincs, maga az épület 1970 környékén épült, a földszint nagy részét 2014-2015-ben, az emeletet 2017-18-ban újították fel teljeskörűen és a jelenleg a földszinten lévő 3 labor is ekkor lett felújítva.
Vízhálózat, elektromos hálózat cseréje megtörtént, minden nyílászáró és burkolás új, szigetelés van és ekkor lett kialakítva a zöldtető is, amely az emeleten teraszként használható.
Fűtési mód: elektromos panelek (+fűtő/hűtő klíma).
Extrák:
Carport- áramtermelés.
A solar rendszer 2024 decemberében lett telepítve, van elektromos autó töltési lehetőség is.
Az inverter teljesítőképessége: fázisonként/ darabonként (kVA): 6,67 – 6,67 – 6,66 Összesen: 20 (kVA) ~ .07.15 között 17 100 kWh termelt.
Kiépített és működő kamera-, és riasztórendszer.
Egyéb információk:
A gáz az épületben nincs kiépítve, de az épület falához/oldalához van vezetve.
A földszinti 4 iroda és az emeleti 3 iroda klímával felszerelt.
Az összes irodában laminált padló van.
A földszinti 4 iroda reluxával felszerelt.
Az emeleti 3 irodában szalagfüggöny van.
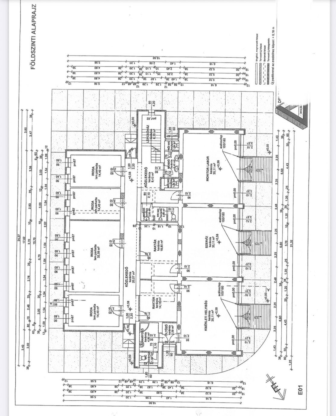
Jelenlegi helyiségek kiosztása:
FÖLDSZINT:
3x14,4 m2-es helyiségek (jelenleg irodák)
1x32,59 m2-es helyiségek (jelenleg iroda)
kb. 6-7 m2-es zuhanyzó
kb. 19 m2-es helyiség (jelenleg raktár)
3x35,11 m2-es helyiség (jelenleg laborok) – kívülről külön bejárattal is rendelkeznek
kb. 7 m2-es női mosdó
kb. 7 m2-es férfi mosdó
földszinten is lett kialakítva egy konyha
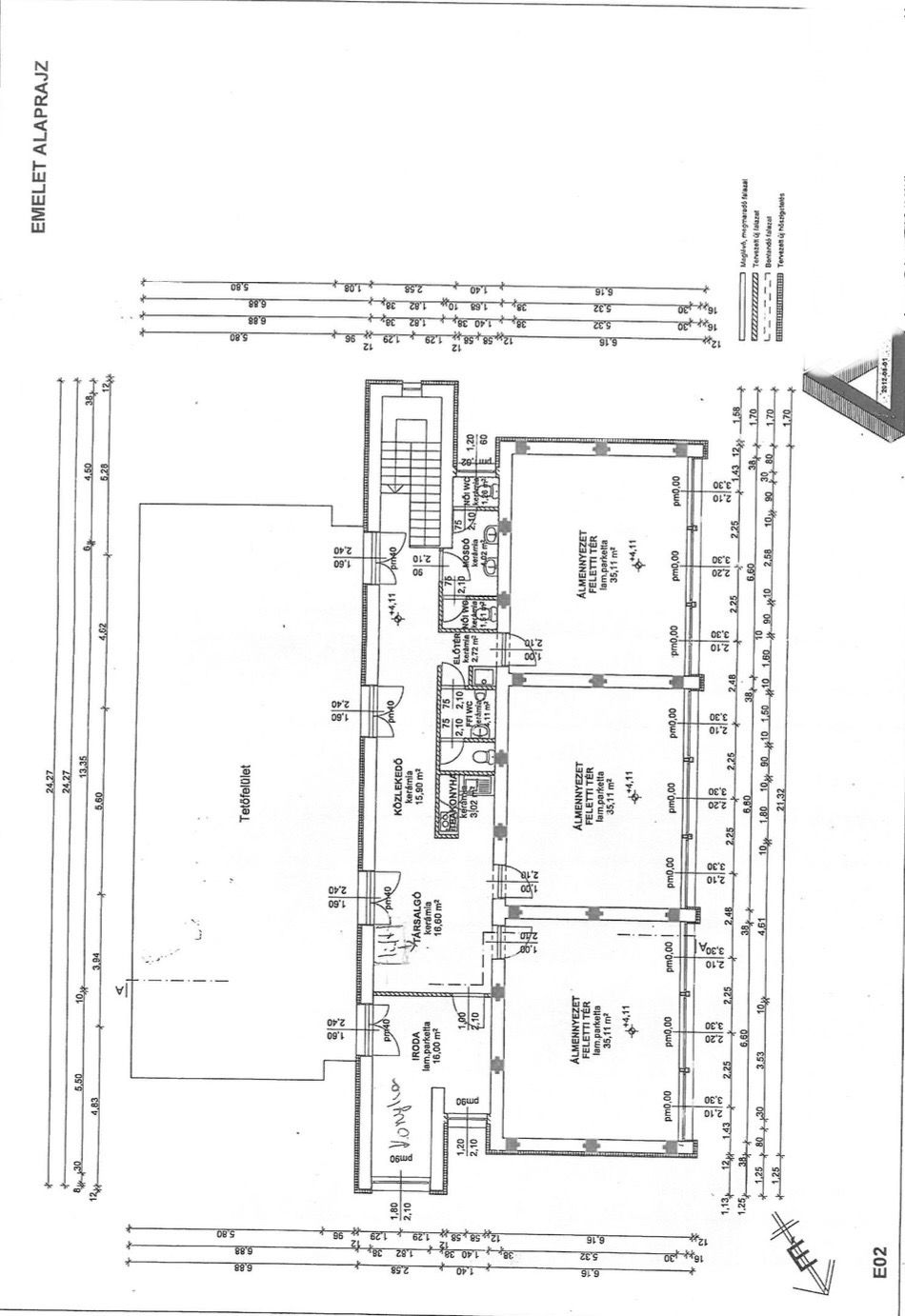
EMELET:
3x35,11 m2-es helyiségek (jelenleg irodák)
kb. 7m2-es női mosdó
kb. 5 m2-es férfi mosdó
kb. 6-7 m-es helyiség (jelenleg szerver szoba)
3 m2-es konyha + kb. 26 m2-es társalgó/ebédlő
tetőkert/terasz
Irányára: 220.000.000 Ft + Áfa























