Megvételre kínálunk egy 1983-ban épült, majd 2013-22 között teljeskörűen felújított, összközműves, belterületi irodaházat.
Jelen állapota igényes, jó állapotú.
Energetikai besorolása A++
Telekterülete 4256 nm, az épület nettó hasznos négyzetmétere 1834, melyből bérbe adható nettó alapterület 1263 nm. Tulajdoni hányad: 1/1.
Az udvar területe füvesített, az épületek körüli járdák és utak betonozottak.Maga az ingatlan aszfaltozott úton közelíthető meg. Parkolás magánúton és magánterületen lehetséges.

Az épület alapja lemezalap, talajnedvesség elleni szigeteléssel ellátott.
Vázszerkezet acél, panel kitöltő falazattal, födémje előregyártott vasbeton.
Belső válaszfalai panelból készültek, tetőszerkezete szigetelt lapostető.
Nyílászárói korszerű műanyag, hőszigetelt üvegezésű ablakok és ajtók.
Homlokzati szigetelése 15 cm.
Fűtése kondenzációs gázkazán és elektromos kazán, radiátoros hőleadókkal.
Puffertároló csatlakoztatva, tartalékos fűtésként elektromos fűtőpanelek kerültek kihelyezésre.Hűtő-fűtő klímával felszerelt.
A különálló épület a volt nagyteremből lett kialakítva 2022-ben. Melegvíz ellátottság villanybojler, plusz átfolyós elektromos vízmelegítők.
A folyamatos 2013-22 között zajlott teljes felújítás során riasztó, tűzjelző, kültéri kamerarendszer, szigetelt álmennyezet, energiatakarékos, kazettás álmennyezetbe süllyesztett ledes világító panelek, hűtő-fűtő klímák és nagyteljesítményű napelemrendszer került az épületbe. Részleges víz-, és villanyvezeték csere, a homlokzati nyílászárók cseréje, radiátorok, beltéri ajtók cseréje, új gázkazán, új elektromos kazán emeli az ingatlan értékét.
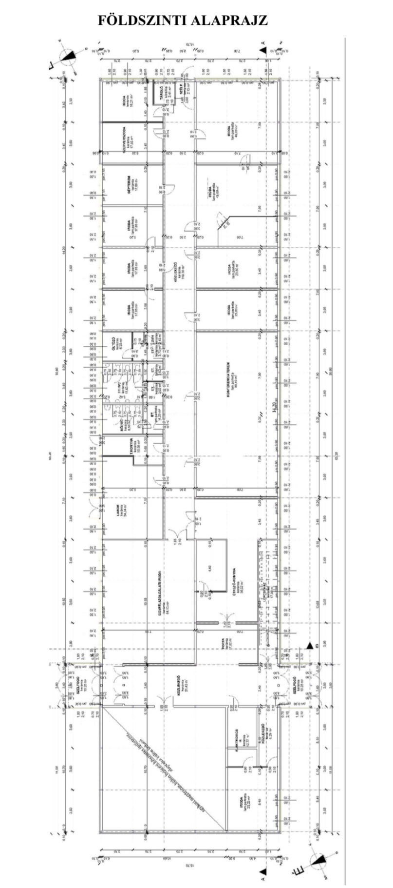
Az épület főbejárata a délnyugati homlokzat felől közelíthető meg.
A földszinten közlekedő, recepció, irodák, ügyfélszolgálati irodaként funkcionáló terem, gépterem, vizesblokkok, teakonyha, konferenciaterem kaptak helyet.
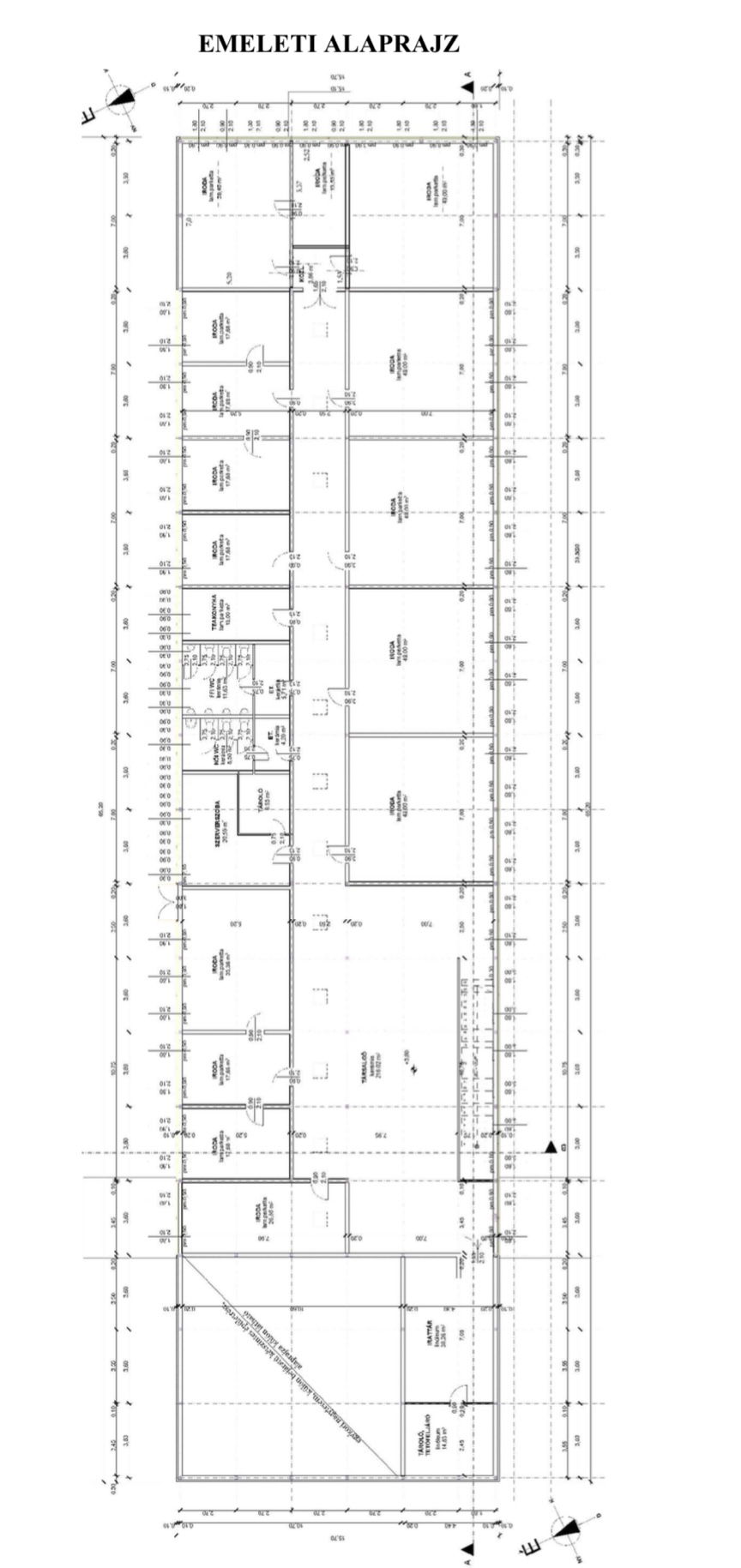
Az emeletre a szélfogóból induló lépcső vezet fel.
Itt egy nagy társalgó, közlekedők, irodahelyiségek, szerver szoba és vizesblokkok, valamint kisebb kiegészítő helyiségek kaptak helyet.
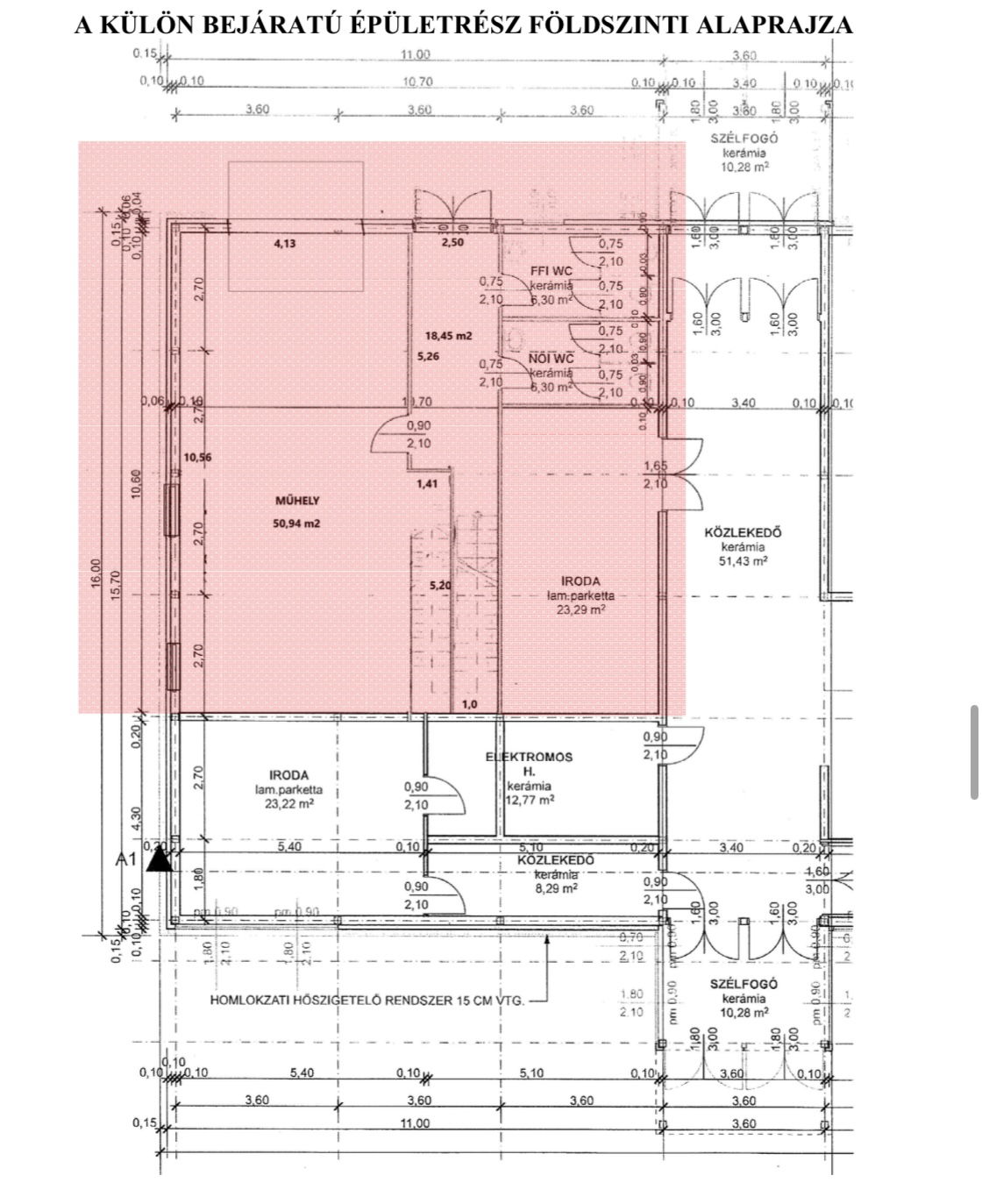
Az épület északnyugati részén lévő korábbi nagytermet egy külön, udvari bejáratú, kétszintes épületrésszé alakították át 2022-ben.
Az épültre nagyteljesítményű napelemrendszert telepítettek.
Földszintjén egy műhely, közlekedő és vizesblokkok, emeletén teakonyha, közlekedő és irodahelyiségek kaptak helyet.
A földszint és az emelet egyaránt 2,96 m belmagasságú.
Az épület összességében felújított, igényes, jó állapotú.
Lokációja kiváló, a Balaton 14 km, Budapest 110 km. A 8-as főút négy percnyi távolságra esik.
Az ingatlan ára: 565.000.000 Ft + Áfa

Amennyiben az ingatlant szeretné megtekinteni, kérem hívjon telefonos elérhetőségemen!





























